Free Printable Chicken Coop Plans – Grab the ideal Free Printable Chicken Coop Plans for your next task—it’s free, quick to download, and prepared to print instantly. No accounts, no trouble, exactly what you’re looking for.

Are you thinking about raising your own chickens but don’t know where to start? Look no further! With free printable chicken coop plans, you can easily build a cozy and functional home for your feathered friends. Whether you’re a seasoned DIY enthusiast or a beginner looking for a fun project, these plans are sure to inspire you to create the perfect chicken coop for your backyard.
Step-by-Step Guide
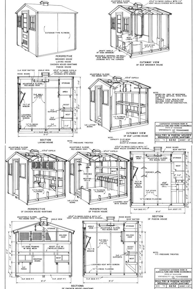
Building a chicken coop may seem like a daunting task, but with the right plans, it can be a fun and rewarding experience. Free printable chicken coop plans typically include detailed instructions, material lists, and diagrams to help you every step of the way. From choosing the right location for your coop to adding finishing touches, these plans provide a comprehensive guide to ensure your chickens have a safe and comfortable home. You can customize the plans to suit your needs and preferences, whether you want a small coop for a few hens or a larger one for a growing flock.
Cost-Effective Solution
One of the best things about using free printable chicken coop plans is that they offer a cost-effective solution for building a chicken coop. Instead of spending a fortune on a pre-made coop, you can save money by building your own using the free plans available online. Not only will you save on the initial cost of the coop, but you can also customize it to fit your budget and design preferences. With a little bit of creativity and effort, you can create a one-of-a-kind chicken coop that suits your needs and your chickens’ needs. So why wait? Get started on building your dream chicken coop today with free printable plans!
Free Printable Chicken Coop Plans



Related Printables..
Disclaimer: We use images for commentary and illustration on this site. No copyright infringement is intended. If you find an image that belongs to you and want it credited or removed, provide proof of ownership, and we will take appropriate action.